Prodej bytu 3+1, ul. Růžová Most

2.100.000 ,-
Celkem 24 fotografií, zobrazit všechny
Makléř:
realitní makléř: Linda Petrášková
Bc. Linda Petrášková
telefon: 776745187
petraskova@dmpl.cz

Prodej bytu 3+1, ul. Růžová Most

2.100.000 ,-
Popis nemovitosti:

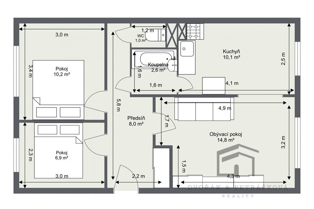
Realitní společnost Dvořák & Petrášková reality vám nabízí k prodeji byt v osobním vlastnictví 3+1 se sklepem a komorou na patře o celkové ploše 56 m2.

Bytová jednotka je ve stavu před rekonstrukcí a je umístěná v posledním, tedy 8.patře panelového domu s výtahem na adrese Růžová 3088/17. Na patře jsou pouze 3 byty s klidnými sousedy, kteří zde žijí řadu let. Byt disponuje předsíní s vestavěnými skříněmi, vstupy do dvou ložnic, obývacího pokoje, do koupelny a na toaletu. Na obývací pokoj navazuje oddělená kuchyně s místem na jídelní stůl a vstupem do koupelny.
Koupelna s vanou je v původním stavu s umakartovým jádrem a toaleta je umístěna samostatně. Rozvody elektřiny jsou původní, tedy v hliníku. Byt je vhodný k celkové rekonstrukci. Nábytek v nemovitosti můžeme ponechat či odvést, obojí v rámci kupní ceny. V bytě je plyn a elektřina. Teplou vodu a ohřev TUV zajišťuje dálkový rozvod z teplárny. K bytu náleží komora na patře (1,2 m2) a sklep (1,1 m2) v prvním podzemním patře.

Panelový dům je zateplený, okna jsou plastová a střecha byla taktéž v posledních letech revitalizována.
Byt není zatížený žádnými právními vadami. Plánek 2D reflektuje současný stav bytu, 3D poté návrh možné rekonstrukce koupelny a kuchyně.

Parkování je možné před domem.
Měsíční poplatky v rámci SVJ jsou pro 1 osobu 5.000,– Kč.

V lokalitě je veškerá občanská vybavenost, školy, školky, v blízkosti oblíbený OC Centrál Most a Aquapark Most.
S financováním Vám ráda pomohu. Prohlídky jsou možné po předchozí domluvě.
Pro více informací mě neváhejte kontaktovat.

Typ nemovitosti:
Byt
Číslo nemovitosti:
25035
Typ bytu:
3+1
Operace:
Prodej
Vlastnictví:
Osobní
Adresa:
Most
Růžová 3088/17
Nemovitost byla již prodána
Plocha sklepa:
2 m2
Podlaží:
8. podlaží z 8 podlaží celkem
Stav objektu:
Před rekonstrukcí
Konstrukce:
Panelová
Umístění objektu:
Centrum obce
Vydaný certifikát:
G - Mimořádně nehospodárná
Typ certifikátu:
vyhláška č. 264/2020 Sb
Je zobrazena tato GPS souřadnice:
50° 29' 49.137"N, 13° 39' 10.651"E

Finanční kalkulačka

Líbí se Vám tato nemovitost, ale nemáte v současné době dostatek finančních prostředků? Rádi Vám poskytneme možnost financování.


Částka:

Úrok:
%

Doba splácení:
let

Měs. splátka: